水果邦农人之家

 找回密码
 加入农人之家大家庭

QQ登录

只需一步,快速开始

123
返回列表 发新帖
楼主: 乡下人家

自建房草图求意见

[复制链接]

参加活动:0

组织活动:0

6216

帖子

6040 小时

在线时间

28

好友

农艺达人

Rank: 35Rank: 35Rank: 35Rank: 35Rank: 35Rank: 35Rank: 35Rank: 35Rank: 35Rank: 35

昵称
老农
UID
232630
鲜花
43439 朵
农币
66533 枚
发表于 2020-10-5 16:10 | 显示全部楼层 来自: 中国重庆
乡下人家 发表于 2020-10-5 00:05
无须理会喷子,哪个真心诚意,咱心知肚明!下面是我熬夜赶的方案,望家人指教。如果家人有需要,也可借签 ...

同学:
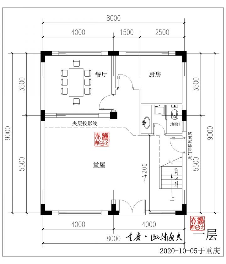
完全按比例绘制,自己对比看看,效果如何?如果住宅层楼梯不上屋面,还可得到3000*4000的小厅,但夹层浪费面积太大。

看在你付了10000农币的份上,建议——

1. 层高不高大的、室内非承重隔墙,可以用100或120的厚、隔声没多大的问题。
2. 开间1500的厕所不好布置,洗脸盆台板600宽(柱盆、角盆小气)、通道至少700,建议北向外挑1.5m(多挑300)、用以扩大2个卫生间;主卧的卫生间宜2.8m,否则衣柜较短。
3. 按你现在的布置设想,轴线不变、楼梯间也不倒向,从专业的角度有更优化潜力——各层卫生间几乎对齐集中、1根排水立管,如继续下雨、不能出门,可出方案图。

这种简单图纸的录入,对于职业人来说、1刻钟的时间就可搞定。 AAAA.jpg
BBBB.jpg



点评

1.夹层想过做两跑,无奈层高2.7,转不上去。所以才弄了三跑。夹层客厅面积问题,我的西出檐1m,达到了4*5的空间。 2.2层是要到屋顶的,2层楼梯如果能上3米层高,也会用2跑。昨晚和师傅也正商量此事,如图一致,同时  详情 回复 发表于 2020-10-5 19:22
曾口朝黄土背朝天,参加过‘农业学大寨’运动的、真资格老农。
回复 支持 反对

使用道具 举报

参加活动:0

组织活动:0

3450

帖子

2192 小时

在线时间

75

好友

★溉帮★五袋长老

Rank: 18Rank: 18Rank: 18Rank: 18Rank: 18

昵称
龙果漂湘
UID
73189
鲜花
5434 朵
农币
14610 枚
居住地
湖南 永州
专职
园艺爱好者
 楼主| 发表于 2020-10-5 19:22 来自手机 | 显示全部楼层 来自: 中国湖南
山村渔夫 发表于 2020-10-05 16:10
同学:
完全按比例绘制,自己对比看看,效果如何?如果住宅层楼梯不上屋面,还可得到3000*4000的小厅,但夹层浪费面积太大。

看在你付了10000农币的份上,建议——
1. 层高不高大的、室内非承重隔墙,可以用100或120的厚、隔声没多大的问题。
2. 开间1500的厕所不好布置,洗脸盆台板600宽(柱盆、角盆小气)、通道至少700,建议北向外挑1.5m(多挑300)、用以扩大2个卫生间;主卧的卫生间宜2.8m,否则衣柜较短。
3. 按你现在的布置设想,轴线不变、楼梯间也不倒向,从专业的角度有更优化潜力——各层卫生间几乎对齐集中、1根排水立管,如继续下雨、不能出门,可出方案图。

这种简单图纸的录入,对于职业人来说、1刻钟的时间就可搞定。

1.夹层想过做两跑,无奈层高2.7,转不上去。所以才弄了三跑。夹层客厅面积问题,我的西出檐1m,达到了4*5的空间。
2.2层是要到屋顶的,2层楼梯如果能上3米层高,也会用2跑。昨晚和师傅也正商量此事,如图一致,同时此层西向也出檐1m作阳台,北边不能再出了,有规定的。厕所2.8很有道理,吸收了。
3.建房师傅不厌其烦帮我讨论图纸,他说:自己建房都没这么用心,这是他和我设计的最满意的图纸了!孰不知,我背后藏着渔夫老友。这是我们昨晚更改的定稿。

点评

基本上全按照楼主的设想修改、优化,如这个方案还不满意的话,老农在行业中摸爬滚打几十年——设计、施工、著名大学客座,算是白混了。与你最初的设想对比一下,看看有多少变化,应该算比较完善了。把图纸打印出来,  详情 回复 发表于 2020-10-6 00:51
回复 支持 反对

使用道具 举报

参加活动:0

组织活动:0

6216

帖子

6040 小时

在线时间

28

好友

农艺达人

Rank: 35Rank: 35Rank: 35Rank: 35Rank: 35Rank: 35Rank: 35Rank: 35Rank: 35Rank: 35

昵称
老农
UID
232630
鲜花
43439 朵
农币
66533 枚
发表于 2020-10-6 00:51 | 显示全部楼层 来自: 中国重庆
乡下人家 发表于 2020-10-5 19:22
1.夹层想过做两跑,无奈层高2.7,转不上去。所以才弄了三跑。夹层客厅面积问题,我的西出檐1m,达到了4*5 ...

基本上全按照楼主的设想修改、优化,如这个方案还不满意的话,老农在行业中摸爬滚打几十年——设计、施工、著名大学客座,算是白混了
与你最初的设想对比一下,看看有多少变化,应该算比较完善了。
把图纸打印出来(PDF文档打印更清楚),自己好好琢磨、琢磨。
老专家、老教授又忙了1天+熬夜,你的农币本来就不多了,打赏与否、随便?
天天下雨,不能出门、摆弄花草果木,无聊、才帮忙弄弄,好多年没亲手画图了哦。
3.7m轴线进深、摆放2.0m的床有点紧张(双床头柜),除非床头柜另做,建议把进深做到3.9m、总进深控制在10.7m(3.5+5.5+1.7),3.5+5.5+1.5=10.5m、2楼休闲厅恢复到3.0m进深也可。
3.5m轴线进深,只能摆放1.5m或1.6m的床,购置家具时注意。
如需要,图中可稍详细标注。

AA1.jpg
AA2.jpg
AA3.jpg
AA4.jpg

附件
pdf文档.rar (141.89 KB, 下载次数: 2)
曾口朝黄土背朝天,参加过‘农业学大寨’运动的、真资格老农。
回复 支持 反对

使用道具 举报

参加活动:0

组织活动:0

271

帖子

355 小时

在线时间

1

好友

大学三年级

Rank: 15Rank: 15Rank: 15Rank: 15Rank: 15

UID
321360
鲜花
3807 朵
农币
19647 枚
发表于 2020-10-7 16:47 来自手机 | 显示全部楼层 来自: 中国广东潮州

小厅进主卧他应该少了个门
回复 支持 反对

使用道具 举报

参加活动:0

组织活动:0

271

帖子

355 小时

在线时间

1

好友

大学三年级

Rank: 15Rank: 15Rank: 15Rank: 15Rank: 15

UID
321360
鲜花
3807 朵
农币
19647 枚
发表于 2020-10-7 16:50 来自手机 | 显示全部楼层 来自: 中国广东潮州

你这个二楼和我的二楼差不多,但是我厅放大

点评

以前想过二楼做客厅,但后来做了夹层做客厅,这样二楼卫生,安静些  详情 回复 发表于 2020-10-8 08:20
回复 支持 反对

使用道具 举报

参加活动:0

组织活动:0

271

帖子

355 小时

在线时间

1

好友

大学三年级

Rank: 15Rank: 15Rank: 15Rank: 15Rank: 15

UID
321360
鲜花
3807 朵
农币
19647 枚
发表于 2020-10-7 16:52 来自手机 | 显示全部楼层 来自: 中国广东潮州
乡下人家 发表于 2020-10-04 20:33
不好意思,才忙完,非常感谢老师傅的辛苦付出,对我很有借签意义,明天我会修改完善。帮人出图,确是费神劳力之事,我深被老师傅的精神所折服,在今后的工作中定以您为榜样,无以为谢,农币万金奉上,聊表敬意!(在你发的帖中打赏)

我自己的步骤是根据家里人八字,算厨房灶位,定主房,再搞其他

点评

我是无神论者,重点考虑通风采光,舒适成本等。  详情 回复 发表于 2020-10-8 08:22
回复 支持 反对

使用道具 举报

参加活动:0

组织活动:0

3450

帖子

2192 小时

在线时间

75

好友

★溉帮★五袋长老

Rank: 18Rank: 18Rank: 18Rank: 18Rank: 18

昵称
龙果漂湘
UID
73189
鲜花
5434 朵
农币
14610 枚
居住地
湖南 永州
专职
园艺爱好者
 楼主| 发表于 2020-10-8 08:20 来自手机 | 显示全部楼层 来自: 中国
xiabei46 发表于 2020-10-07 16:50
你这个二楼和我的二楼差不多,但是我厅放大

以前想过二楼做客厅,但后来做了夹层做客厅,这样二楼卫生,安静些
回复 支持 反对

使用道具 举报

参加活动:0

组织活动:0

3450

帖子

2192 小时

在线时间

75

好友

★溉帮★五袋长老

Rank: 18Rank: 18Rank: 18Rank: 18Rank: 18

昵称
龙果漂湘
UID
73189
鲜花
5434 朵
农币
14610 枚
居住地
湖南 永州
专职
园艺爱好者
 楼主| 发表于 2020-10-8 08:22 来自手机 | 显示全部楼层 来自: 中国
xiabei46 发表于 2020-10-07 16:52
我自己的步骤是根据家里人八字,算厨房灶位,定主房,再搞其他

我是无神论者,重点考虑通风采光,舒适成本等。
回复 支持 反对

使用道具 举报

参加活动:0

组织活动:0

1万

帖子

188 小时

在线时间

0

好友

★溉帮★五袋长老

Rank: 18Rank: 18Rank: 18Rank: 18Rank: 18

UID
338679
鲜花
23768 朵
农币
-222 枚
发表于 2020-10-9 15:20 来自手机 | 显示全部楼层 来自: 中国浙江
回复 支持 反对

使用道具 举报

参加活动:0

组织活动:0

6216

帖子

6040 小时

在线时间

28

好友

农艺达人

Rank: 35Rank: 35Rank: 35Rank: 35Rank: 35Rank: 35Rank: 35Rank: 35Rank: 35Rank: 35

昵称
老农
UID
232630
鲜花
43439 朵
农币
66533 枚
发表于 2020-10-29 18:30 | 显示全部楼层 来自: 中国重庆
与你目前正在修建的房屋极其类似、没挑空而已,总面积约170方、相比少约80方。对于顶楼主卧室、其享受安逸得很。

带卫生间、衣柜也足够,更可高休闲种养…

EE1-G.jpg

EE2-G.jpg

EE3-G.jpg


E型PDF文档.rar (311.3 KB, 下载次数: 0, 售价: 40 枚农币)

点评

近段时间忙,没空回复,主要是不知你老不但会钓鱼养花,还身怀建房绝技,如果早知道,这也能节约不少成本。不过后面你帮我改的也非常不错了,老友你的设计绝对适合手头紧的农居建设,因你考虑到了师傅的建房水平,装  详情 回复 发表于 2020-11-16 22:13
确实是舒心,经济实惠些,恨不能早点与你相识  详情 回复 发表于 2020-10-30 21:34
曾口朝黄土背朝天,参加过‘农业学大寨’运动的、真资格老农。
回复 支持 反对

使用道具 举报

参加活动:0

组织活动:0

3450

帖子

2192 小时

在线时间

75

好友

★溉帮★五袋长老

Rank: 18Rank: 18Rank: 18Rank: 18Rank: 18

昵称
龙果漂湘
UID
73189
鲜花
5434 朵
农币
14610 枚
居住地
湖南 永州
专职
园艺爱好者
 楼主| 发表于 2020-10-30 21:34 来自手机 | 显示全部楼层 来自: 中国湖南
山村渔夫 发表于 2020-10-29 18:30
与你目前正在修建的房屋极其类似、没挑空而已,总面积约170方、相比少约80方。对于顶楼主卧室、其享受安逸得很。

带卫生间、衣柜也足够,更可高休闲种养……………

确实是舒心,经济实惠些,恨不能早点与你相识
回复 支持 反对

使用道具 举报

参加活动:0

组织活动:0

3450

帖子

2192 小时

在线时间

75

好友

★溉帮★五袋长老

Rank: 18Rank: 18Rank: 18Rank: 18Rank: 18

昵称
龙果漂湘
UID
73189
鲜花
5434 朵
农币
14610 枚
居住地
湖南 永州
专职
园艺爱好者
 楼主| 发表于 2020-11-16 22:13 来自手机 | 显示全部楼层 来自: 中国湖南永州
山村渔夫 发表于 2020-10-29 18:30
与你目前正在修建的房屋极其类似、没挑空而已,总面积约170方、相比少约80方。对于顶楼主卧室、其享受安逸得很。

带卫生间、衣柜也足够,更可高休闲种养……………

近段时间忙,没空回复,主要是不知你老不但会钓鱼养花,还身怀建房绝技,如果早知道,这也能节约不少成本。不过后面你帮我改的也非常不错了,老友你的设计绝对适合手头紧的农居建设,因你考虑到了师傅的建房水平,装修布局,舒适。而那些看似高大上的图纸,或因为师傅水平,或因农村新材料稀缺,或因手头紧而降低要求,最后弄个四不象
回复 支持 反对

使用道具 举报

参加活动:0

组织活动:0

2277

帖子

353 小时

在线时间

2

好友

★溉帮★五袋长老

Rank: 18Rank: 18Rank: 18Rank: 18Rank: 18

UID
293838
鲜花
5742 朵
农币
30962 枚
居住地
山东 聊城 阳谷县 西湖
专职
园艺爱好者
发表于 2020-12-10 18:48 | 显示全部楼层 来自: 中国山东聊城
                        帮顶
回复 支持 反对

使用道具 举报

参加活动:0

组织活动:0

6570

帖子

886 小时

在线时间

8

好友

★溉帮★七袋长老

Rank: 20Rank: 20Rank: 20Rank: 20Rank: 20

昵称
沙漠之舟在希望的田野上
UID
277173
鲜花
16728 朵
农币
109733 枚
居住地
新疆 伊犁 霍城县
专职
种植园主
发表于 2020-12-11 21:22 来自手机 | 显示全部楼层 来自: 中国新疆
回复 支持 反对

使用道具 举报

本版积分规则

QQ|手机客户端|关于我们|联系我们|规则制度|隐私政策|小黑屋|活动|水果邦 ( 京ICP备06047721号-4 )

GMT+8, 2026-2-19 00:10 , Processed in 0.045394 second(s), 74 queries , Redis On.

Powered by Discuz! X3.4

Copyright © 2001-2020, Tencent Cloud.

快速回复 返回顶部 返回列表